❁販売中物件の情報です❁
(マンション)メゾンドルチェ円山・1190万円

3階部分・角部屋3LDK・リビング南向きで陽当たり良好!◆小学校まで徒歩2分(約130m)。お子さまの通学も安心の立地です!◆南東角部屋な...
続きを読む(マンション)エクセルシオールソレア北16条・3280万円

南・東・北の三方角部屋!100㎡超のゆとりある4LDK!◆100㎡超・9階・角部屋・複数バルコニー・リビング隣接居室など開放感を感じられる...
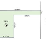
続きを読む(土地)本町1条2丁目・1680万円

地下鉄東豊線「環状通東」駅徒歩12分!バス停は徒歩3分!通勤・通学に便利!◆建築条件無し!自由設計で理想の住まいを実現可能!◆...
続きを読む(戸建)拓北6条2丁目・3490万円

3住戸付き木造2階建て!メイン住戸は令和4年に内装フルリフォームをしており美室です!2住戸は賃貸中!月額合計賃料104,000円!◆JR「拓北」駅...
続きを読む(戸建)北51条東4丁目・2690万円

◆水回りはコンパクトにまとめ、家族が過ごすLDKにゆとりを配分。 回遊動線で、毎日の家事や身支度も自然とラクになります!◆約22.5帖のLDKは数字以上の開放感。家具もゆ...
続きを読む(戸建)北19条東12丁目・3880万円

南西角地で暖かい日差しが差し込むお家!三角屋根が可愛い🩷インターデコハウス (,,>᎑<,,)◆タイル張りの...
続きを読む(土地)北35条東24丁目・1900万円

前面8m幅の道路に面した開放感ある角地物件!◆約50坪のゆとりある整形地です!◆建築条件なしのため、お好きなハ...
続きを読む(戸建)北35条東24丁目・1900万円

日当たり良好な角地物件!組込み車庫とお庭のあるお家です!!◆建物は広々136.8m2の5LDK!◆駐車スペースは2台!1台は雨風を防げるイ...
続きを読む-scaled.jpg)